Location 位置: North Point, HK 香港北角 | Type 类型: Residential 住宅用途 | Date 日期: 2014 – 2015
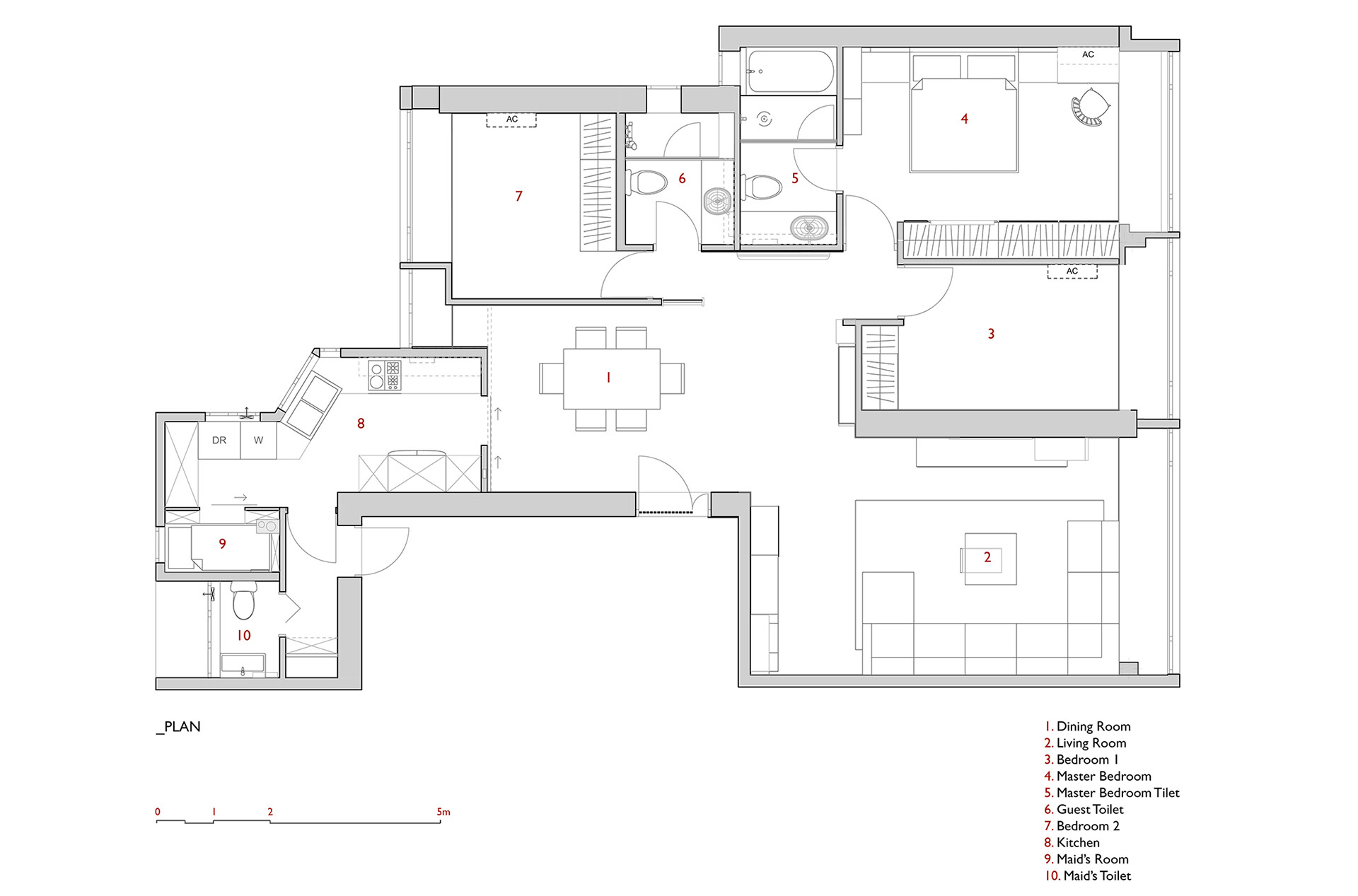
A 1308 sq. ft. apartment is located in Provident Centre, which is designed for a married couple who are looking for simple and elegant style. For the materials, different tone of woods are used to create an elegant style. Other from wood, stone tile and frosted glass are used in some feature space. For the layout, based on the original layout, we use some feature designs such as feature wall, watch display area and light trough to attract people entering into the living room. Meanwhile, APU stretches the length of back wall by frosted glass so as to enhance the dining room space.
这个约一千三百尺的单位位于北角的和富中心。业主为一对夫妇,他们喜欢简洁且大方的家居设计。 APU在选材方面,特别选用了不同款式的木材以营造一个优雅的风格。除了木材外,石材砖和磨砂玻璃也选用于一些特色的地方。根据原先空间布局的基础,单位用了特色墙,手表展示柜和灯槽,以吸引访客步进客厅。同时,APU利用磨砂玻璃延伸了饭厅后墙的长度,从而扩大饭厅空间感。



