Location 位置: Tuen Mun 香港屯门 | Type 类型: Commercial 商业用途 | Date 日期: 2015 - 2016
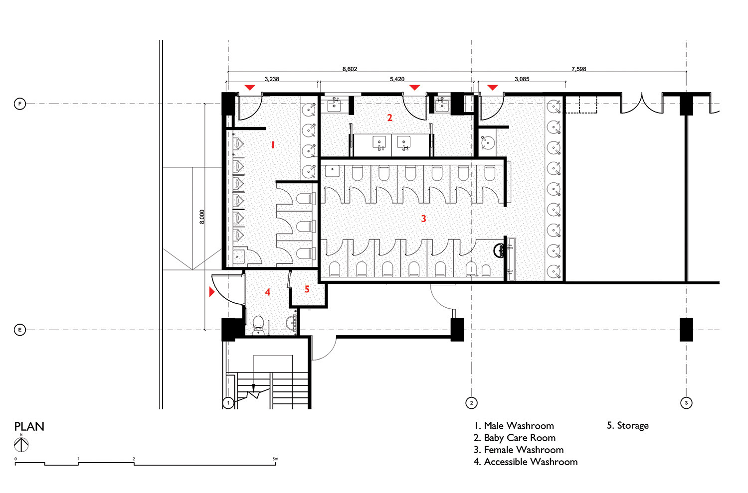
APU was engaged in the design and project management of the toilet refurbishment for Gold Coast Piazza. The old toilet design for the 2-storey shopping mall is mediocre which cannot outstand the unique European-style design and the romantic ambiance of the Mediterranean of the shopping mall. Thus, the Client considered toilet renovation a significant part of the shopping mall refurbishment. APU adopts an European-style design to match the resort atmosphere around the shopping mall. The mix of dark wood colour and white colour created a simple yet elegant design. For selection of materials, the dark wood door and mirror cabinets acted as the natural elements in the overall design. The arrangement of tile patterns on the wall and flooring enhanced the sense of layering. Last but not least, the installation of lighting, wall-mounted lamps and the black-bordered mirrors at the basin area significantly characterized the unique and classy design, making the toilet complex a new refreshing visiting experience.
APU为黄金海岸商场进行洗手间改造设计及项目统筹。 商场共两层,由于旧有洗手间设计简单,欠缺特色,未能突出商场整体的欧式地中海格调,因此客户非常重视是次洗手间的改造项目。 APU于新设计采用欧式风格,配合商场整体的渡假风。 整体设计以深啡色及白色为主,予人简洁高尚的感觉。 选料方面,储物柜及门身用上深啡色木料,为洗手间增加大自然元素。 墙身及地板使用了不同样式的砖及地板,大大增加视觉上的层次感。 洗手盘区域的挂墙灯及黑框镜架,配合各组灯光装置的安排,更大大提高了整体的格调,让洗手间成为商场的新焦点。
APU为黄金海岸商场进行洗手间改造设计及项目统筹。 商场共两层,由于旧有洗手间设计简单,欠缺特色,未能突出商场整体的欧式地中海格调,因此客户非常重视是次洗手间的改造项目。 APU于新设计采用欧式风格,配合商场整体的渡假风。 整体设计以深啡色及白色为主,予人简洁高尚的感觉。 选料方面,储物柜及门身用上深啡色木料,为洗手间增加大自然元素。 墙身及地板使用了不同样式的砖及地板,大大增加视觉上的层次感。 洗手盘区域的挂墙灯及黑框镜架,配合各组灯光装置的安排,更大大提高了整体的格调,让洗手间成为商场的新焦点。


