ABOUT US 关于我们
  • ARCHITECTURE 建筑设计
  • INTERIORS 室内设计
  • TEAM 专业团队
  • NEWS 新闻
  • CSR 社会责任
CONTACT US 联络我们
APU
ABOUT US 关于我们
  • ARCHITECTURE 建筑设计
  • INTERIORS 室内设计
  • TEAM 专业团队
  • NEWS 新闻
  • CSR 社会责任
CONTACT US 联络我们

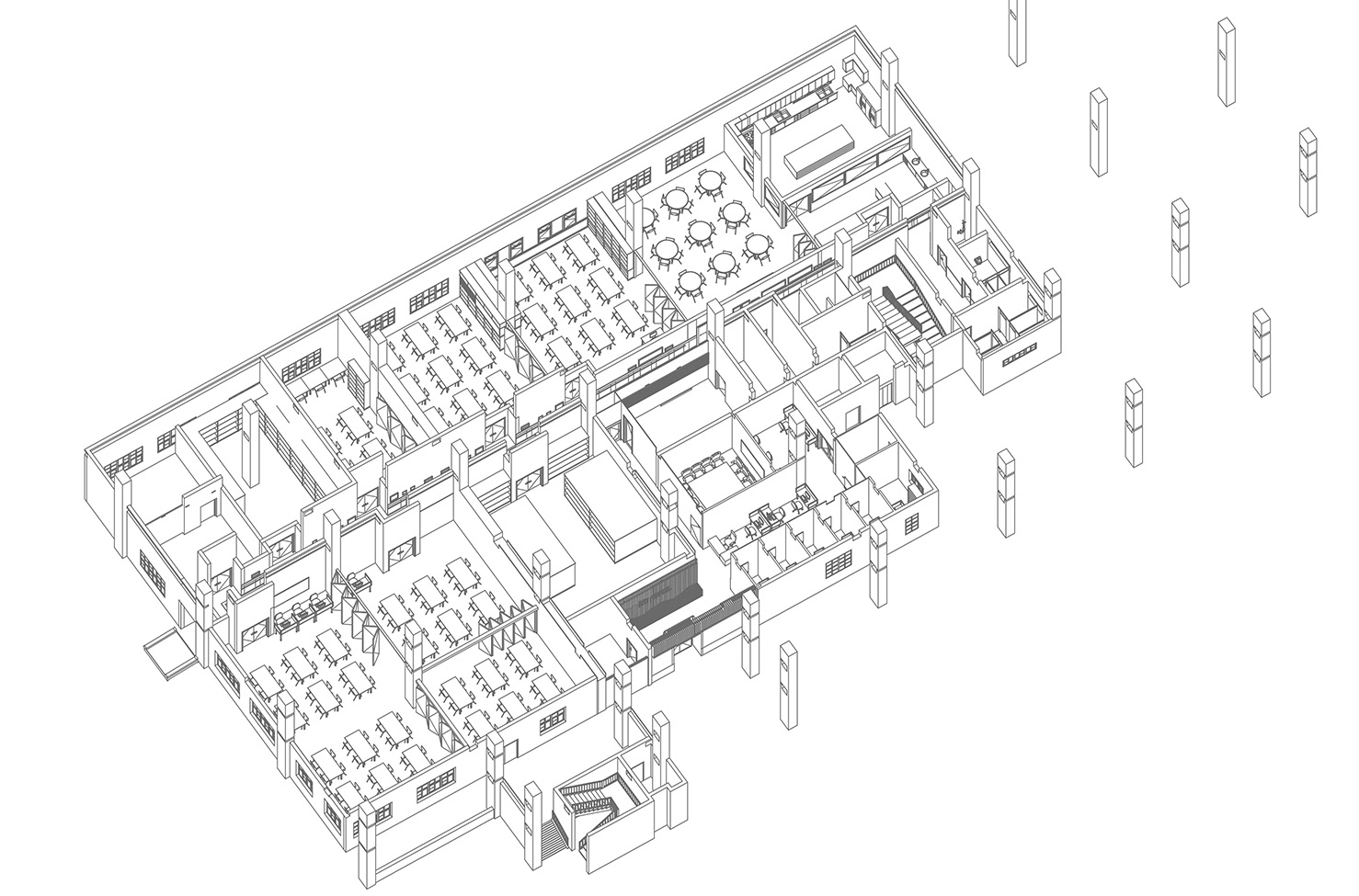
Fu Hong Society, Shek Wai Kok Workshop

扶康会石围角工场翻新工程可行性研究

Location位置: Kwai Chung, HK 香港葵涌   |   Type 类型: Community 社区項目   |   Date 日期:  2016

You may also like

Commercial Complex, Kwun Tong
觀塘商業項目發展計劃
Milkyway Building
润承大厦活化及改造项目
Residential
Revitalization of Eltee Industrial Building
诚兴工业大厦活化项目
Yuen Long Pedestrian Corridor
朗屏站元朗桥建筑设计项目 (可行性研究)
A&A Works of Fanling Centre
粉岭中心改建设计
First Stage of Tseung Kwan O Desalination Plant
将军澳海水化淡厂建筑及BIM顾问项目
Sai Kung Village House
西贡村屋设计及建造
Residential Complex, The Peak
山頂私人住宅發展項目
CHE HA Private House
西貢輋下村獨立屋
↑Back to Top